TABAKSSCHUUR
transformatie voormalige tabaksschuur tot modern woonhuis

2023
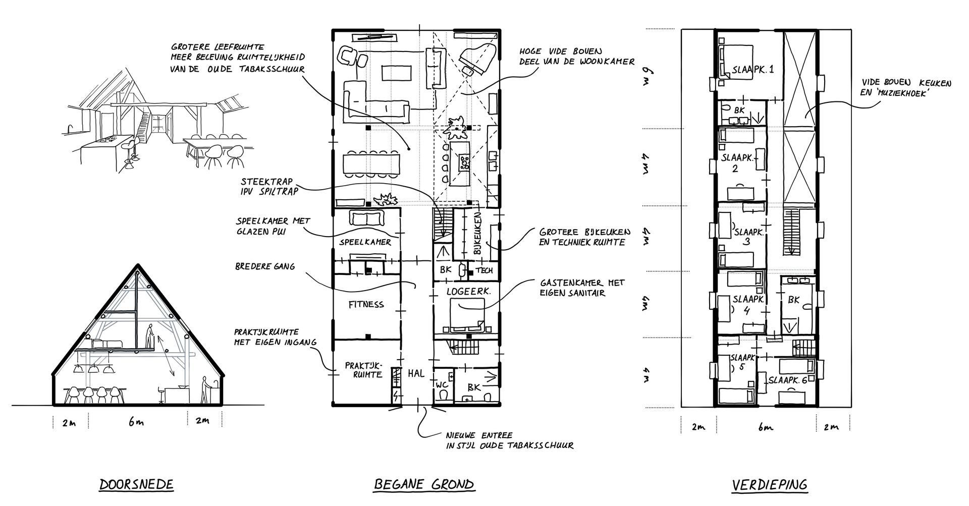
Ontwerp en strategie voor de transformatie van een rijksmonumentale tabaksschuur tot een hedendaagse energieneutrale woning. Zorgvuldige inventarisatie van het historische materiaal door middel van een 3D-scan en vertaling van de resulterende point cloud naar een accuraat 3D-model als basis voor de inpassing van het nieuwe ontwerp. Aansprekende 3D visualisatie om ontwerpkeuzes voor de klant te ondersteunen.












